Ngôi
nhà trong hẻm ở Sài Thành với diện tích vỏn vẹn có 16m² đã tạo ấn tượng
mạnh cho người xem bởi “vóc dáng” mi nhon nhưng bên trong lại cực kỳ
tiện nghi.

“2.5 House” – Ngôi nhà nhỏ nhắn khi được chụp từ trên cao.
Archdaily
là tạp chí kiến trúc với các kênh tiếng Anh, tiếng Tây Ban Nha và Bồ
Đào Nha, thường xuyên cập nhật các dự án xây dựng độc đáo trên toàn thế
giới. Mới đây, tạp chí nổi tiếng với 7 triệu độc giả theo dõi hằng tháng
này đã giới thiệu “2.5 House” – một dự án nhà ở tại thành phố Hồ Chí
Minh do Khuôn Studio thiết kế – với rất nhiều lời ngợi khen .Sở
dĩ ngôi nhà này tạo được ấn tượng mạnh cho người xem là bởi “vóc dáng”
mi nhon của mình. Nó nằm trong một con hẻm sâu tại Quận Tân Bình, TP. Hồ
Chí Minh, diện tích quá nhỏ, lại dài và hẹp (vỏn vẹn 2.5 x 6.5m). Với
điều kiện như vậy nhưng chủ nhân của của nó lại mong muốn xây được một
không gian thoải mái và bố trí đầy đủ tiện nghi. Chính vì thế, các kiến
trúc sư đã rất sáng tạo trong việc thiết kế và cải tạo căn nhà một cách
hoàn hảo nhất có thể.



Ngôi nhà tạo ấn tượng mạnh cho người xem là bởi “vóc dáng” mi nhon của mình.Mặc dù quy mô tổng thể là khá khiêm tốn nhưng nó lại có ưu điểm nhờ việc tận dụng ánh sáng và nguồn gió để tạo nên sự thoáng đáng cho căn nhà. Vì thế, bài toán đặt ra tuy khó nhưng lại không kém phần thú vị đối với các kiến trúc sư. Gia đình nhỏ này bao gồm 2 thành viên trẻ, họ đều yêu thiên nhiên, yêu nguồn sinh khí dồi dào và tươi mát. Đó là lý do vì sao không gian sống nơi đây luôn có sự hiện diện của những mảng xanh tươi của cây cối cùng ánh sáng chan hòa tuyệt đẹp. Điều đó mang đến một cuộc sống thoải mái cho những con người trẻ trong ngôi nhà nhỏ của họ.



Tầng một kết hợp các khu vực cơ bản như phòng khách, phòng ăn, nhà bếp…Tầng một kết hợp các khu vực cơ bản như phòng khách, phòng ăn, nhà bếp và phòng sinh hoạt gia đình. Để thực hiện các chức năng hoạt động linh hoạt và góp phần tối đa hóa không gian, phần sàn được nâng lên để lại không gian bên dưới cho lưu trữ cũng như làm một băng ghế dự bị dẫn lên cầu thang
.
Tuy không gian có diện tích nhỏ, dài và hẹp nhưng lại tạo cảm giác thông thoáng.Tầng hai và tầng lửng có hai phòng ngủ dành cho bố mẹ và những đứa trẻ tương lai. Ý tưởng nội thất được thiết kế mở nhằm mục đích tạo cho phòng ngủ có điều kiện ánh sáng tốt và thông gió, cùng với đó là việc “cơi nới” diện tích thật. Không gian riêng tư được bao bọc bởi cánh cửa trượt bằng tre linh hoạt. Trong phòng ngủ, lại một lần nữa, phần sàn được nâng lên để lại không gian cho việc lưu trữ bên dưới và toàn bộ diện tích đất trống ở trên. Tất cả những yếu tố trên đã làm cho không gian ấm cúng này có vẻ rộng và thoáng mát hơn nhiều.


Các không gian riêng tư được bao bọc bởi cánh cửa trượt bằng tre linh hoạt.Chủ nhân căn nhà và kiến trúc sư tình cờ chia sẻ với nhau rằng, họ có cùng sự quan tâm đến ánh sáng tự nhiên và thực vật trong không gian sống. Điều này giải thích vì sao một nửa của khu vực ban công dành cho cây cảnh. Thêm chút màu xanh tươi mới ấy sẽ tạo nên view nhìn mát mẻ sống động hơn từ phòng ngủ gia đình.


Thêm chút màu xanh tươi mới của cây cỏ sẽ tạo nên view nhìn mát mẻ sống động hơn.Vì
chủ nhân ngôi nhà đều là những người trẻ tuổi với lối sống hiện đại và
thoải mái, không cầu kỳ những kiểu cách nặng nề nên các kiến trúc sư
quyết định loại bỏ các chi tiết phức tạp như phần lan can cầu thang,
giải phóng không gian để xóa nhòa những khoảng cách thô cứng. Nhờ đó mà
mọi thứ trong căn nhà được kết hợp hài hòa, nội thất đơn giản nhưng tiện
nghi tựa như phong cách sống tối giản của người dân “xứ sở hoa anh
đào”.


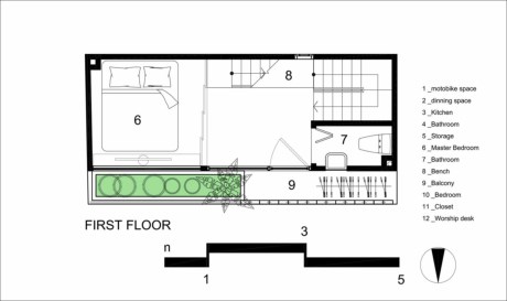
Các chi tiết như phần lan can cầu thang được loại bỏ nhằm giải phóng không gian.Một số hình ảnh bản vẽ mặt bằng các khu vực của “2.5 House” do Khuôn Studio thiết kế:

Hình ảnh phác thảo của công trình độc đáo.





“2.5 House” – Ngôi nhà nhỏ nhắn khi được chụp từ trên cao.

Nó nằm trong một con hẻm sâu tại Quận Tân Bình, TP. Hồ Chí Minh.


Ngôi nhà tạo ấn tượng mạnh cho người xem là bởi “vóc dáng” mi nhon của mình.Mặc dù quy mô tổng thể là khá khiêm tốn nhưng nó lại có ưu điểm nhờ việc tận dụng ánh sáng và nguồn gió để tạo nên sự thoáng đáng cho căn nhà. Vì thế, bài toán đặt ra tuy khó nhưng lại không kém phần thú vị đối với các kiến trúc sư. Gia đình nhỏ này bao gồm 2 thành viên trẻ, họ đều yêu thiên nhiên, yêu nguồn sinh khí dồi dào và tươi mát. Đó là lý do vì sao không gian sống nơi đây luôn có sự hiện diện của những mảng xanh tươi của cây cối cùng ánh sáng chan hòa tuyệt đẹp. Điều đó mang đến một cuộc sống thoải mái cho những con người trẻ trong ngôi nhà nhỏ của họ.



Tầng một kết hợp các khu vực cơ bản như phòng khách, phòng ăn, nhà bếp…Tầng một kết hợp các khu vực cơ bản như phòng khách, phòng ăn, nhà bếp và phòng sinh hoạt gia đình. Để thực hiện các chức năng hoạt động linh hoạt và góp phần tối đa hóa không gian, phần sàn được nâng lên để lại không gian bên dưới cho lưu trữ cũng như làm một băng ghế dự bị dẫn lên cầu thang
.

Tuy không gian có diện tích nhỏ, dài và hẹp nhưng lại tạo cảm giác thông thoáng.Tầng hai và tầng lửng có hai phòng ngủ dành cho bố mẹ và những đứa trẻ tương lai. Ý tưởng nội thất được thiết kế mở nhằm mục đích tạo cho phòng ngủ có điều kiện ánh sáng tốt và thông gió, cùng với đó là việc “cơi nới” diện tích thật. Không gian riêng tư được bao bọc bởi cánh cửa trượt bằng tre linh hoạt. Trong phòng ngủ, lại một lần nữa, phần sàn được nâng lên để lại không gian cho việc lưu trữ bên dưới và toàn bộ diện tích đất trống ở trên. Tất cả những yếu tố trên đã làm cho không gian ấm cúng này có vẻ rộng và thoáng mát hơn nhiều.


Các không gian riêng tư được bao bọc bởi cánh cửa trượt bằng tre linh hoạt.Chủ nhân căn nhà và kiến trúc sư tình cờ chia sẻ với nhau rằng, họ có cùng sự quan tâm đến ánh sáng tự nhiên và thực vật trong không gian sống. Điều này giải thích vì sao một nửa của khu vực ban công dành cho cây cảnh. Thêm chút màu xanh tươi mới ấy sẽ tạo nên view nhìn mát mẻ sống động hơn từ phòng ngủ gia đình.




Các chi tiết như phần lan can cầu thang được loại bỏ nhằm giải phóng không gian.Một số hình ảnh bản vẽ mặt bằng các khu vực của “2.5 House” do Khuôn Studio thiết kế:

Hình ảnh phác thảo của công trình độc đáo.




Không có nhận xét nào:
Đăng nhận xét